(+352) 23 66 09 43
(+352) 621 149 946
(+352) 23 67 65 88
*protected email*
ACCUEIL
commencez ici
PRÉSENTATION
qui sommes nous
SERVICES
ce que nous proposons
RÉFÉRENCES
travaux réalisés
CONTACTS
infos utiles & contact
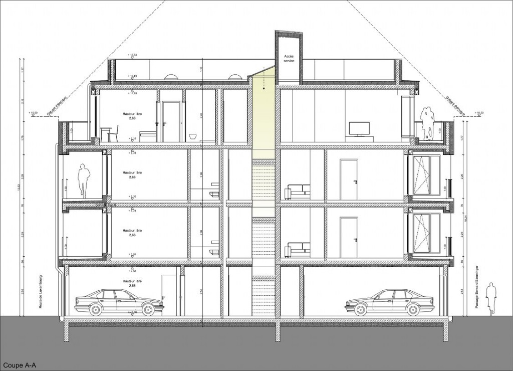
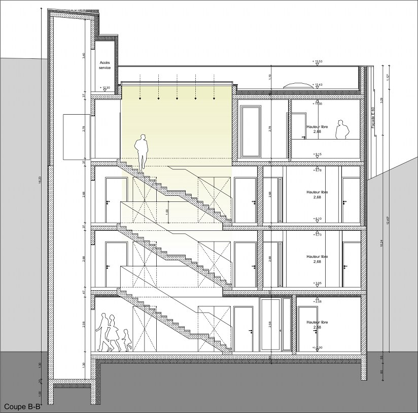
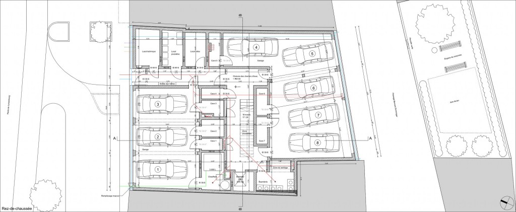
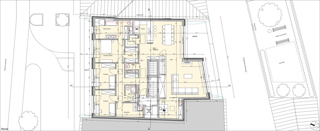
Nouveau projet – Construction d’un immeuble d’abitation à Mondorf-les-Bains
Home
ALENTOURS
Nouveau projet – Construction d’un immeuble d’abitation à Mondorf-les-Bains
Situation:
Mondorf-les-Bains
Projet:
Gros oeuvre, Façade, Alentour
Année:
2016
← Older
Newer →